SEDE WOOD BETON GRUPPO NULLI
RISTRUTTURAZIONE PER RICAVARE UFFICI E SPAZI CREATIVI
PALAZZO VENTURI -CASSA RURALE BASSA VALLAGARINA
IL MIO ATELIER
VOIPVOICE HEADQUARTERS
STUDIO DI ARCHIETTURA E DESIGN
INTERIOR DESIGN
STUDIO LEGALE
COMPLESSO POLIFUNZIONALE
UFFICI HOFFENGROUP
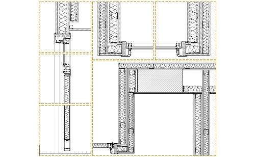
DETTAGLIO COSTRUTTIVO - PARETE A SECCO
STUDIO MEDICO
UFFICI OPEN SPACE
PROGETTO E D.L. DI MANUTENZIONE STRAORDINARIA E DI RISANAMENTO DELLE FACCIATE, RIQUALIFICAZIONE ENERGETICA MEDIANTE CAPPOTTO, MANUTENZIONE DELLA COPERTURA E PAVIMENTAZIONE DEL CORTILE IN PALAZZINA UFFICI E RESIDENZE
UFFICI